1808 Columbus Drive 3, TAMPA, FL 33605
Property Photos
Would you like to sell your home before you purchase this one?
Priced at Only: $299,990
For more Information Call:
Address: 1808 Columbus Drive 3, TAMPA, FL 33605
Property Location and Similar Properties
- MLS#: TB8439113 ( Residential Income )
- Street Address: 1808 Columbus Drive 3
- Viewed: 2
- Price: $299,990
- Price sqft: $138
- Waterfront: No
- Year Built: 2007
- Bldg sqft: 2170
- Bedrooms: 2
- Total Baths: 3
- Garage / Parking Spaces: 1
- Days On Market: 3
- Additional Information
- Geolocation: 27.967 / -82.4386
- County: HILLSBOROUGH
- City: TAMPA
- Zipcode: 33605
- Subdivision: Giustos Twnhms
- Provided by: OMEGA RE GROUP LLC
- Contact: Jeff Stevens
- 813-390-9670

- DMCA Notice
-
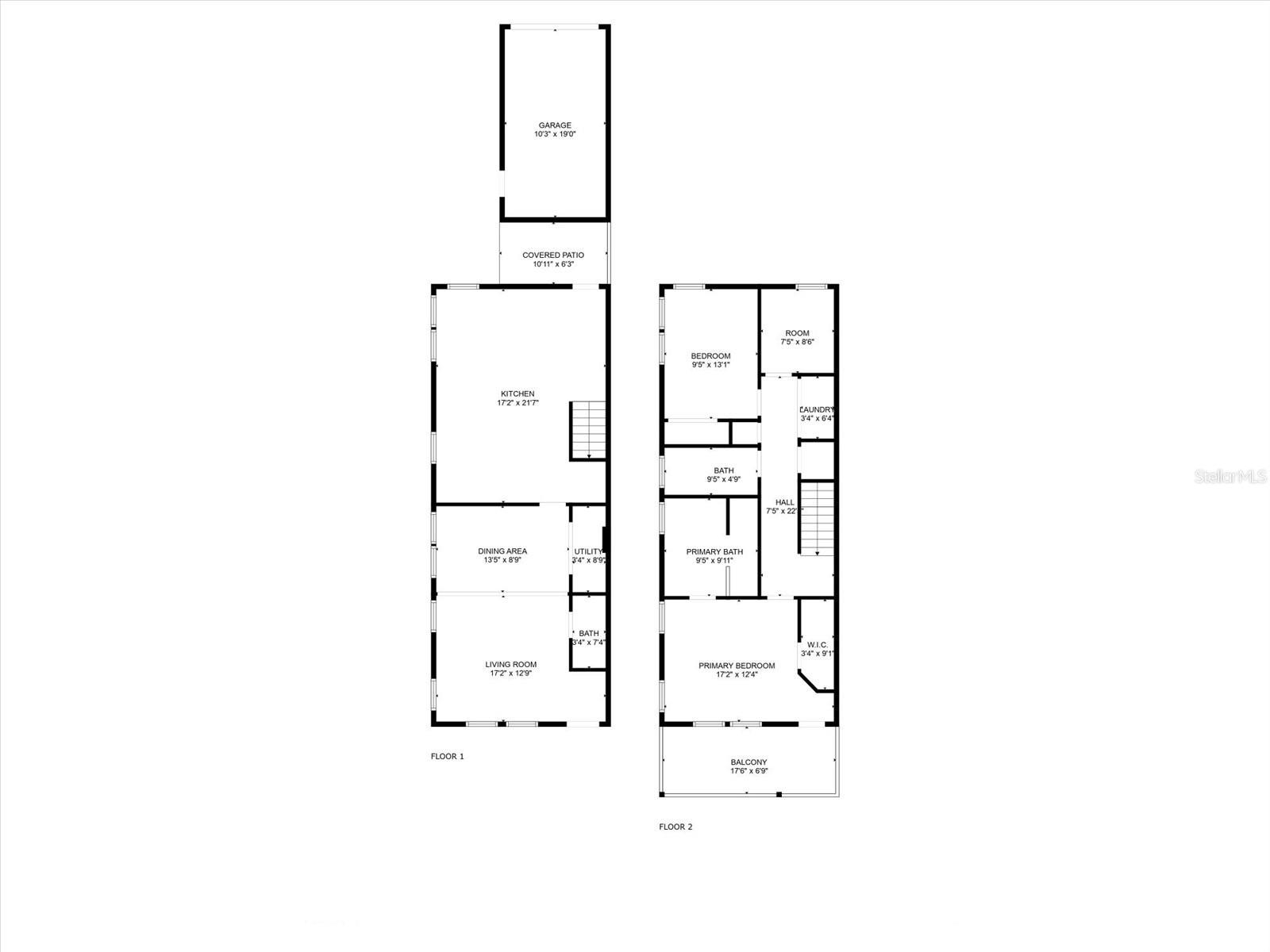
DescriptionDon't miss this opportunity to own 1 to 4 income producing townhomes NOW in Ybor City! Each unit is 1,620 square foot of luxury. Each unit is 100% tenant occupied with well paying, on time tenants. No flooding at all during any hurricanes in 2024! Each unit features luxurious high ceilings, two bedrooms, 2.5 bathrooms and a separate office space upstairs. Downstairs, each kitchen has been designed to feature exactly what tenants ask for: high end, stainless steel appliances including fridge, range, microwave and dishwasher. The kitchen is open, spacious and has room for a dining table and the granite countertop is the icing on the cake. The living room is LARGE and open, with lots of windows to let in the light. The wooden staircase leads you up stairs to the main bedroom, features an en suite bathroom with large tub AND shower, double vanity and tons of space. The large balcony outside is the perfect place to unwind after a long day. The hallways leads to the 2nd bedroom, bathroom and laundry closet WITH washer and dryer. Outside, the backyard provides ample room and leads to the garage and a fully fenced yard. Metal roof installed in 2007, A/C was replaced in 2021, water heater was replaced in 2022. These unique townhomes are located close to downtown, Historic Ybor City, Armature Works, the new Gaswerx Ybor project, many restaurants, bars and shops! Easy access to the highway. Even better: No HOA! Each unit is separately metered for electricity. All units are currently leased. Please note: price is for EACH unit. We have 4 units available, 1, 2, 3, and 5.
Payment Calculator
- Principal & Interest -
- Property Tax $
- Home Insurance $
- HOA Fees $
- Monthly -
Features
Building and Construction
- Covered Spaces: 0.00
- Exterior Features: Balcony, Lighting
- Flooring: Carpet, Tile, Wood
- Living Area: 1620.00
- Roof: Metal
Property Information
- Property Condition: Completed
Garage and Parking
- Garage Spaces: 1.00
- Open Parking Spaces: 0.00
- Parking Features: Driveway, Garage Faces Rear, On Street
Eco-Communities
- Water Source: Public
Utilities
- Carport Spaces: 0.00
- Cooling: Central Air
- Heating: Electric
- Sewer: Public Sewer
- Utilities: Cable Available, Electricity Connected, Sewer Connected, Water Connected
Finance and Tax Information
- Home Owners Association Fee: 0.00
- Insurance Expense: 0.00
- Net Operating Income: 0.00
- Other Expense: 0.00
- Tax Year: 2024
Rental Information
- Tenant Pays: Electricity
Other Features
- Appliances: Built-In Oven, Dishwasher, Freezer, Ice Maker, Microwave, Range, Refrigerator
- Country: US
- Furnished: Unfurnished
- Interior Features: Ceiling Fans(s), High Ceilings, Primary Bedroom Main Floor, Thermostat, Walk-In Closet(s), Window Treatments
- Legal Description: GIUSTOS TOWNHOMES LOT 3
- Levels: Two
- Area Major: 33605 - Tampa / Ybor City
- Occupant Type: Tenant
- Parcel Number: A-07-29-19-97Z-000000-00003.0
- View: City
- Zoning Code: YC-2
Similar Properties
- Corey Campbell, REALTOR ®
- Preferred Property Associates Inc
- 727.320.6734
- corey@coreyscampbell.com


























































