4743 10th Avenue S, ST PETERSBURG, FL 33711
Property Photos
Would you like to sell your home before you purchase this one?
Priced at Only: $127,000
For more Information Call:
Address: 4743 10th Avenue S, ST PETERSBURG, FL 33711
Property Location and Similar Properties
- MLS#: TB8402982 ( Land )
- Street Address: 4743 10th Avenue S
- Viewed: 105
- Price: $127,000
- Price sqft: $0
- Waterfront: No
- Year Built: Not Available
- Bldg sqft: 0
- Days On Market: 153
- Additional Information
- Geolocation: 27.7601 / -82.698
- County: PINELLAS
- City: ST PETERSBURG
- Zipcode: 33711
- Subdivision: Vinsetta Park Add Rev
- Elementary School: Bear Creek Elementary PN
- Middle School: Azalea Middle PN
- High School: Boca Ciega High PN
- Provided by: DEMETER PROPERTIES INC
- Contact: Heidi Arnold
- 813-226-0687

- DMCA Notice
-
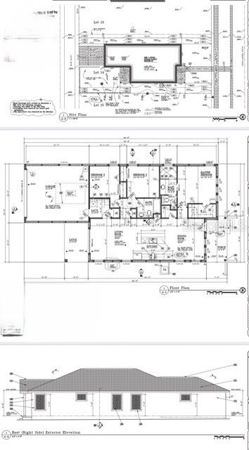
DescriptionBuildable Lot with Approved Plans Prime Opportunity! Seize the chance to build your dream home on this 47x112 lot (5,262 SF) located in an established neighborhood and zoned NT 1, which allows for the addition of an Accessory Dwelling Unit (ADU)perfect for guest space, rental income, or multigenerational living. Seller has approved architectural plans that can be included with the purchase, offering a head start on construction and permitting. Nestled beside a stunning 2024 semi custom home, this lot offers a unique opportunity to create a personalized residence in an area of continued growth and development. Bring your vision to life and take advantage of this ready to build lot today! Great location! Just minutes from 5th Ave S taking you to Downtown St. Pete and I 275 S. City of Gulfport is approximately 8 minutes via 49th St
Payment Calculator
- Principal & Interest -
- Property Tax $
- Home Insurance $
- HOA Fees $
- Monthly -
Features
Building and Construction
- Covered Spaces: 0.00
- Living Area: 0.00
School Information
- High School: Boca Ciega High-PN
- Middle School: Azalea Middle-PN
- School Elementary: Bear Creek Elementary-PN
Garage and Parking
- Garage Spaces: 0.00
- Open Parking Spaces: 0.00
Eco-Communities
- Water Source: Public
Utilities
- Carport Spaces: 0.00
- Sewer: Public Sewer
- Utilities: Public
Finance and Tax Information
- Home Owners Association Fee: 0.00
- Insurance Expense: 0.00
- Net Operating Income: 0.00
- Other Expense: 0.00
- Tax Year: 2024
Other Features
- Country: US
- Current Use: Residential
- Legal Description: VINSETTA PARK ADD REV BLK 8, LOT 14 LESS E 3FT
- Area Major: 33711 - St Pete/Gulfport
- Parcel Number: 28-31-16-94248-008-0140
- Views: 105
- Zoning Code: NT-1
Similar Properties
- Corey Campbell, REALTOR ®
- Preferred Property Associates Inc
- 727.320.6734
- corey@coreyscampbell.com










